
Трёхполюсные фиксированные контакты предназначены для установки внутри корпуса низковольтного распределительного щита и служат в качестве надёжной и стабильной точки подключения основной электрической цепи. Они работают в сочетании с подвижными контактами на выдвижных модулях, обеспечивая высокую проводимость и безопасную работу в модульных распределительных системах.
Эти контакты изготовлены из высокопроводящей меди с серебряным или оловянным покрытием, что улучшает устойчивость к окислению, снижает потери и продлевает срок службы изделия. Фиксированные контакты легко интегрируются в различные типы низковольтных распределительных шкафов и обеспечивают плавное и надёжное посадочное соединение при подключении и отключении модулей.
Трёхполюсные фиксированные контакты поддерживают различные значения номинального тока, такие как 125 А, 250 А, 400 А и 630 А, с возможностью индивидуального изготовления под проект.
Конструкция контактов обеспечивает широкую контактную поверхность для равномерного распределения тока, а точное сопряжение с подвижными контактами гарантирует безопасную и удобную эксплуатацию при частом подключении и отключении модулей.
Фиксированные контакты разработаны для долговечной и стабильной работы в составе низковольтных распределительных щитов, особенно в системах с выдвижными элементами. Они обеспечивают:
надёжное соединение основного шинопровода и модулей
высокую проводимость и улучшенное тепловое поведение
устойчивость к окислению благодаря специальному покрытию
простоту обслуживания и замены при необходимости
Трёхполюсные фиксированные контакты широко используются в оборудовании низковольтных распределительных систем, таких как распределительные щиты с выдвижными модулями, силовые распределительные панели промышленных и коммерческих объектов.
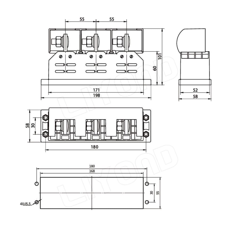
Чертёж трёхполюсных фиксированных контактов основного цепи XCT6-B-3-125A (250A, 400A)
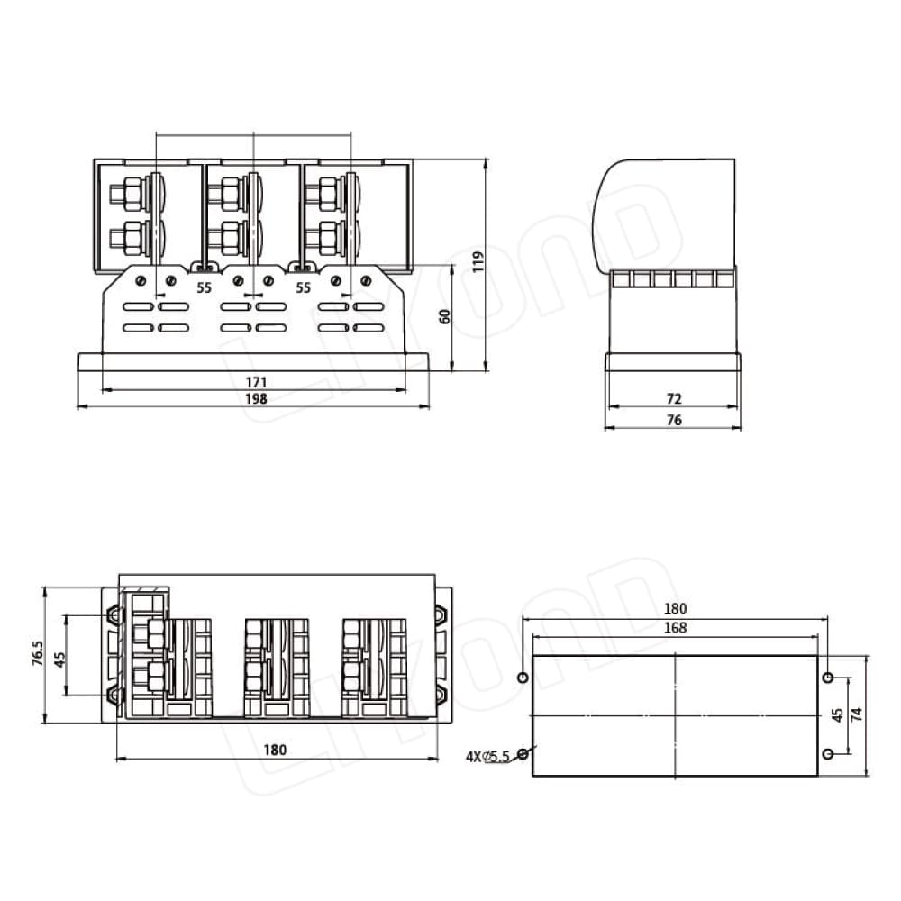
Чертёж трёхполюсных фиксированных контактов основного цепи XCT6-B-3-630A, XCT6-B-3-630A-S
Мы здесь, чтобы помочь! Свяжитесь с нашей командой для получения экспертной поддержки и индивидуальных решений.
Вам также могут быть интересны сопутствующие товары.
ЗАПРОССделайте свои проекты долговечными с помощью стабильной и высококачественной аппаратуры и компонентов от Liyond.